phone_in_talk +38 097 602-11-57
location_on

Україна, м. Київ,

вул. Мрії 8 (Туполева), офіс 17
 
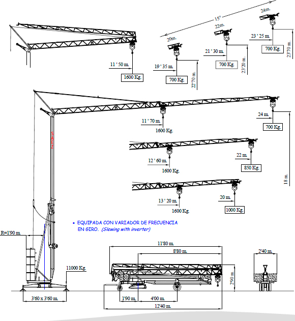
Вантажопідйомність1,6 т
Виліт стріли24 м
Вантажопідйомність при максимальному вильоті стріли0,7 т

 

 

Швидкомонтовані баштовий кран SAEZ H 24 з вантажопідйомністю 1,6 тонни, даний кран оснащений стрілою - 24 м, вантажопідйомність при максимальному вильоті стріли - 0,7 т.

Купить быстромонтируемый башенный кран SAEZ H 24

Характеристики баштового крана Saez H 24