phone_in_talk +38 097 602-11-57
location_on

Украина, г. Киев,

ул. Мрии 8 (Туполева), офис 17
 
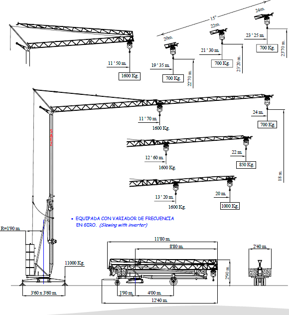
Грузоподъемность1,6 т
Вылет стрелы24 м
Грузоподъемность при максимальном вылете стрелы0,7 т

 

Быстромонтируемый башенный кран SAEZ H 24 с грузоподъемностью 1,6 тонны, данный кран оснащен стрелой - 24 м, грузоподъемность при максимальном вылете стрелы - 0,7 т.

Купить быстромонтируемый башенный кран SAEZ H 24

Характеристики башенного крана Saez H 24