Україна, м. Київ,
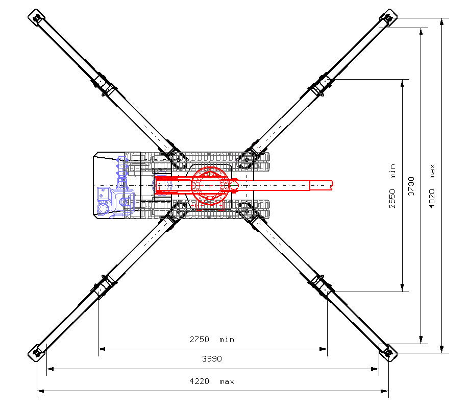
Міні кран K20 г/п 2т х 1м мак.высота 9,5
Вантажопідйомність: 2050кг х 1мМаксимальна довжина стріли 7,5мМаксимальна висота підйому 9,5 мВага: 1700 кг
Уточнити ціну