phone_in_talk +38 097 602-11-57
location_on

Україна, м. Київ,

вул. Мрії 8 (Туполева), офіс 17
 

Кран консольно-поворотний це найпопулярніша вантажопідйомна техніка. Назву консольний кран застосовують до стрілових кранів, які закріплені на консолі, та в яких вантажо-захоплюючий механізм пересувається по стрілі.

 

Вантажний візок рухається по нерухомій або поворотній консолі. Крани консольні поворотні широко використовуються в самих різних галузях промисловості для транспортувальних, вантажно-розвантажувальних, складських робіт при температурі повітря від плюс 40 ° С до мінус 20 ° С на будівельних майданчиках, в виробничих цехах і складах. Кут повороту стрілі  крана залежно від моделі коливається від 0 ° С до 360 ° С. Вантажопідйомність кранів консольних становить від 150 кг до 10 тон і більше.

 

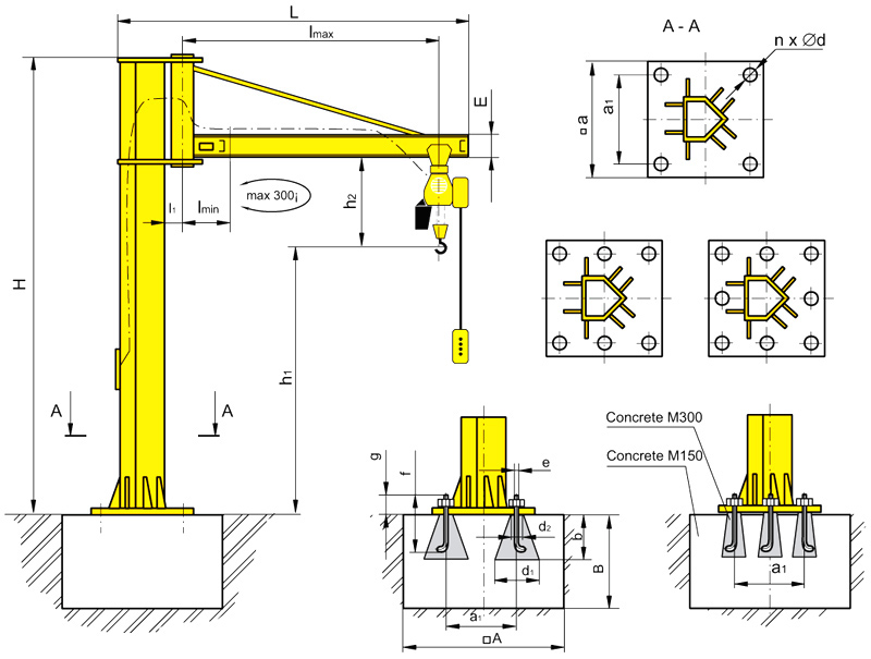
Поворотний кран на вільно стоячій колоні - являє собою консоль з двотаврової балки або коробчастого профілю, яка спирається на верхню частину колони, встановленої на фундамент.

 

Поворотний кран консольний на колоні з ручним або механічним обертанням консолі. Призначений, для маніпуляцій вантажами в цехах підприємств, на великих площах або для обслуговування робочих місць.