phone_in_talk +38 097 602-11-57
location_on

Україна, м. Київ,

вул. Мрії 8 (Туполева), офіс 17
 
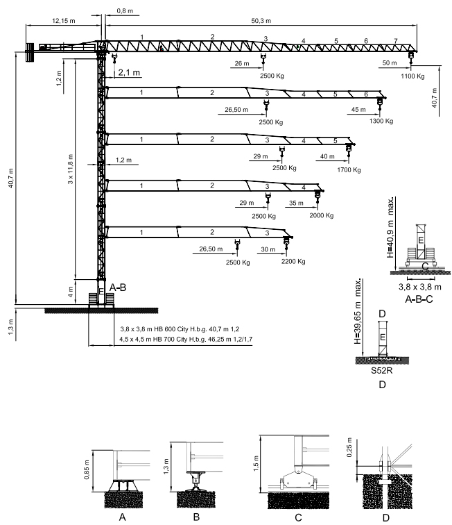
Грузоподъемность5 т
Вылет стрелы50 м
Грузоподъемность при максимальном вылете стрелы1,1 т

 

Башенный кран Saez TL 505 5T позволяет механизировать строительные, ремонтно-монтажные и прочие типы работ при возведении многоэтажных конструкций. Модель применяется в строительстве жилых домов, общественных и промышленных зданий, сооружений различной сложности с весом устанавливаемых элементов до 5 тонн.

Купить башенный кран SAEZ TL505 5T

Особенности башенного крана Saez TL 505


Башенный кран Saez TL 505 5T относится к категории стационарных безоголовочных башенных кранов. Главное преимущество такого подъемного оборудования состоит в простоте и удобстве установки. Рабочая стрела может монтироваться и наращиваться по секциям на земле или непосредственно на смонтированном кране.


Основные характеристики:

  • Многообразие схем сборки, позволяющих в короткие сроки достичь нужной высоты и длины стрелы.
  • Возможность удлинения рабочей стрелы, крепления оборудования к объекту, который строится с минимальным количеством пристежек.
  • Основанием для установки модели может служить анкерная конструкция, опорный крест или рельсовые пути.
  • Безопасность и надежность. В производстве составных узлов, деталей и конструкций башенного крана Saez TL 505 5T применяются качественные высокотехнологичные материалы. Перед выпуском подъемное оборудование проходит все необходимые испытания и проверки на производственном полигоне.
  • Комфортная и эргономичная кабина машиниста с большой площадью остекления, простым в управлении центром контроля башенного крана. В разобранном виде башенный кран имеет компактные размеры, что в дополнение к сравнительно малому весу конструкций обеспечивает лучшие условия для перевозки.

Характеристики башенного крана Saez TL 505