phone_in_talk +38 097 602-11-57
location_on

Украина, г. Киев,

ул. Мрии 8 (Туполева), офис 17
 
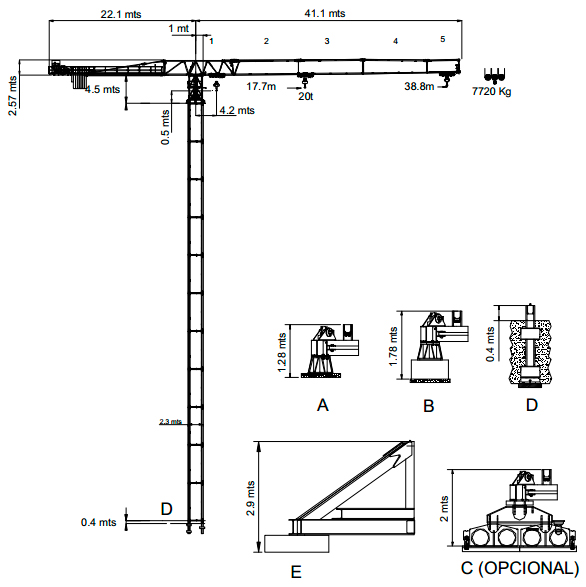
Грузоподъемность20 т
Вылет стрелы39 м
Грузоподъемность при максимальном вылете стрелы7,7 т

 

 

Башенный кран без оголовка Saez TLS 7520- P40 с грузоподъемностью 8 тонн, данный кран оснащен стрелой - 38,8 метр, грузоподъемность при максимальном вылете стрелы - 7720 кг.

Купить башенный кран SAEZ TLS TLS 7520 P40


Башенный кран без оголовка Saez TLS 7520 P40 с грузоподъемностью 20 тонн, данный кран оснащен стрелой — 39 метр, грузоподъемность при максимальном вылете стрелы — 7720 кг.

 

Характеристики башенного крана Saez TLS 7520 P40