phone_in_talk +38 097 602-11-57
location_on

Украина, г. Киев,

ул. Мрии 8 (Туполева), офис 17
 
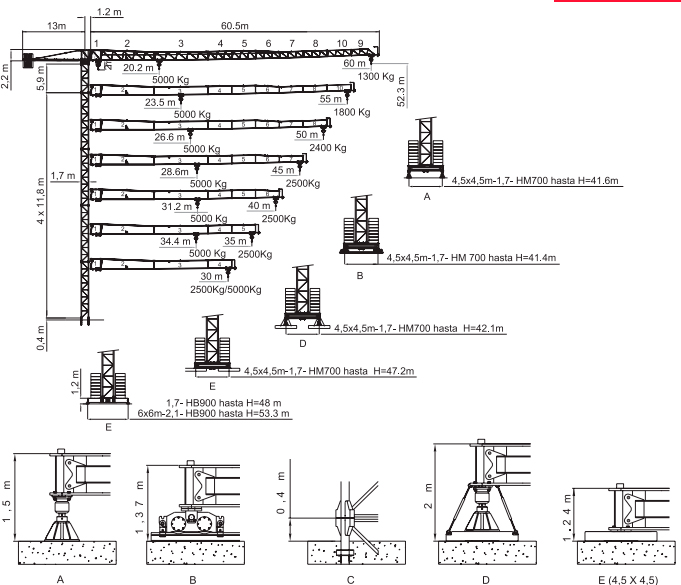
Грузоподъемность5 т
Вылет стрелы60 м
Грузоподъемность при максимальном вылете стрелы1,3 т

 

Башенный кран без оголовка Saez TLS 605 с грузоподъемностью 5 тонн, данный кран оснащен стрелой - 60 м, грузоподъемность при максимальном вылете стрелы - 1,3 т.

Купить башенный кран SAEZ TLS 605

Характеристики башенного крана Saez TLS 605