phone_in_talk +38 097 602-11-57
location_on

Украина, г. Киев,

ул. Мрии 8 (Туполева), офис 17
 
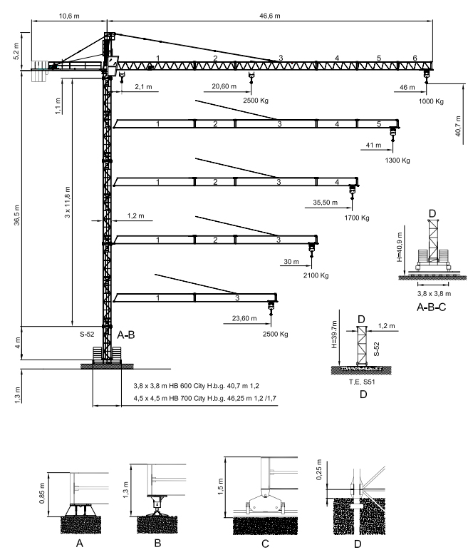
Грузоподъемность2,5 т
Вылет стрелы46 м
Грузоподъемность при максимальном вылете стрелы1 т

 

Башенный кран c оголовком Saez S46 с грузоподъемностью 4 тонны, данный кран оснащен стрелой - 46 м, грузоподъемность при максимальном вылете стрелы - 1 тонна.

Купить башенный кран SAEZ S 46

Характеристики башенного крана Saez S 46