phone_in_talk +38 097 602-11-57
location_on

Ukraine, Kiev,

Mriya street 8 (Tupoleva), office 17
 

Development of automatic process control systems (APSC), controlled electric drive systems, software for process control systems, processes visualization software, production management software, design documentation in EPLAN Electric P8, AUTOCAD, COMOS.

 

Work types:
  • Project "turnkey" implementation;
  • Data sourcing onsite;
  • Drafting and approval of technical design specification and design assignments, any help to the customer in formalization of requirements to the automatic process control system (APSC) and the entire industrial complex;
  • Development of design documentation, using the latest and most effective tools for the design: EPLAN Electric P8, EPLAN Pro Panel, EPLAN PPE, COMOS, AutoCAD;
  • Development of software for automatic process control systems (APSC software development) of any complexity, either in the classic software products, or with the help of the set of programs for automatic process control systems development PCS7.
  • Assistance in commissioning of production facilities;
  • Guarantee automation systems (control systems) and post-warranty servicing of automation systems;
  • Customer training on site or training at our training center.

 

APCS projects development of any complexity, for various purposes:
  • Projects "turnkey" implementation in the following parts:
    Control and Measuring Devices & Automatic Equipment (CMD&A) (equipment selection, layout, external connection diagram, cable routing);
    APCS (control cabinets development);
    Electrical Engineering (electrical equipment selection, layout, mechanisms control, lighting, signaling system);
    non-standard equipment designing (based on the requirements of production engineers and designers, we perform electrical equipment selection, cable routing and other works);
    job tasks issuing in consecutive design areas (for proper understanding of the design margins and to ensure the necessary work conditions, tasks are developed for necessary building works, heating and ventilation systems engineering, etc.)
  • Control and Measuring Devices (CMD&A) Projects;
  • APCS Projects;
  • Drive control system projects;
  • Structured cabling systems (SCS);
  • Access control systems and video surveillance;
  • Lighting;
  • Power Distribution;
  • Alternative energy sources projects;
  • Buildings Automation;
  • Energy metering (Automatic system for commercial accounting of power consumption);
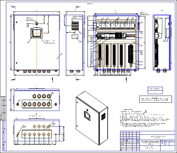
  • Developing of assembly drawings for control systems cabinets for various purposes;
  • Development of technical specifications;
  • Design documentation adaptation to the Customer’s requirements;
  • Carrying out installation and commissioning works.

 

Design documentation development
  • Full set control cabinets of various complexity:
    Thermo-stabilized electrical cabinets, IP54;
    Control cabinets type IP54 with filter and fan, without chokes;
    Electrical drive control cabinets;
    Electronic cabinets for control systems;
    Electrical control cabinets;
    Electro-pneumatic cabinets and pneumatic cabinets for equipment control systems;
    control panels with built-in electronic equipment;
  • Energy Systems business.

 

  
The tools used for design

Well co-ordinated teamwork and use of the most advanced design technology in automation projects development, allows our engineers to quickly and accurately develop quality design documentation.

  • A revolutionary product for designing of electrical schematic diagrams - computer aided engineering system EPLAN Electric P8, EPLAN PPE
  • World-famous software package for design AutoCAD
  • Integrated development system COMOS


The unique concept of EPLAN Electric P8 allows combined design implementation and data transmission.